Vaata, milline on EuroSkillsil elektrik Sten Sihveri võistlusülesanne
Kolmapäeval Taanis algavatel Euroopa kutsemeistrivõistlustel EuroSkills Herning 2025 esindab Eestit Tallinna Tehnikakõrgkooli elektriinseneri eriala tudeng ja Viljandi Kutseõppekeskuse vilistlane Sten Sihver, kellel tuleb mõõtu võtta eri riikidest pärit 15 noore elektrikuga.
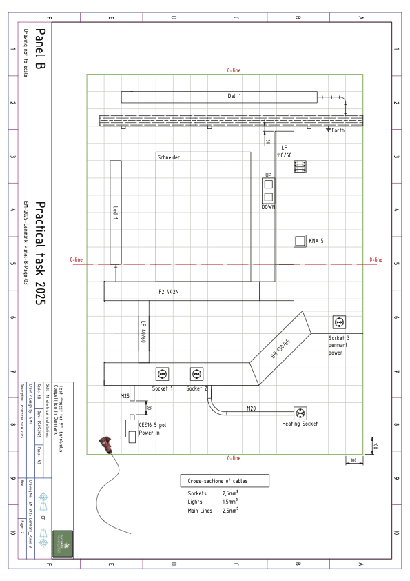
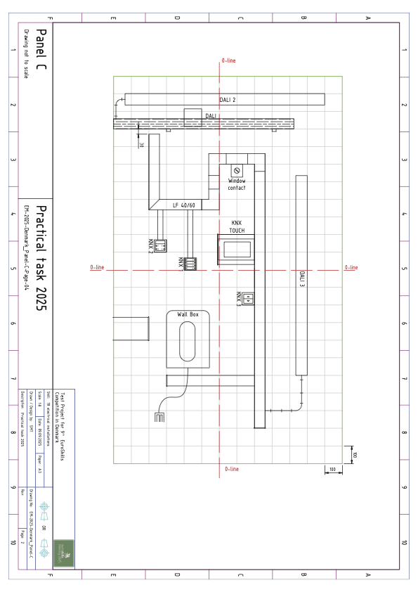
Võistlusel osalevatele noortele elektrikutele anti ülesanded kätte umbes kolm kuud tagasi. Tegemist on targa maja lahenduste KNXiga, mis tähendab, et osalejatel tuleb olla tugev nii paigaldamises kui programmeerimises.
Vaata lähemalt, milline on noorte selle aasta võistlusülesanne: paneelid A,B ja C joonised mõõtkavas ning põhimõtteskeem elektrilisteks ühendusteks.




EuroSkills toimub 9.–13. septembrini Taanis Herningis ja sellel võistlevad kuni 25aastased noored meistrid.

